
Ref: 01/4201
Jouw expert
Kantoor Antwerpen
Yves Deckers
Tel: +32 (0)3 287 80 00
GSM: +32 (0)493 48 14 36
yves.deckers@hillewaere.be
Verkaveling De Rogge te Vosselaar
Te Koop - Roggestraat 0, 2350 Vosselaar
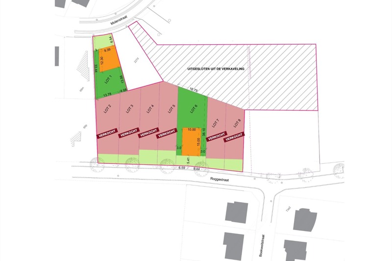
Verkaveling "De Rogge"
UITVERKOCHT
De nieuwe verkaveling "De Rogge" is gelegen op wandelafstand van het centrum van de groene gemeente Vosselaar en bestaat uit 8 bouwgronden waarvan er nog 2 beschikbaar zijn met oppervlakten tussen 461m² en 642 m². De percelen zijn geschikt voor het oprichten van een open of halfopen bebouwing voor ééngezinwoning met maximum 2 bouwlagen en een dakverdieping. Gelegen in woongebied en in een goedgekeurde verkaveling. Verkavelingsvoorschriften op eenvoudig verzoek te bekomen via ons kantoor. Vrij van bouwverplichting: u bouwt wanneer en met wie u wenst. Mogelijkheid tot inpandig kantoor/vrij beroep. Voorzieningen: De straat is verhard met asfalt en uitgerust met de volgende nutsvoorzieningen: water, electriciteit, gas, TV-distributie, telefoon, openbare verlichting.
infoplicht: Gvg - Wg - Gdv - Gvkr - Vv
Documenten
Momenteel zijn er geen documenten beschikbaar van dit pand op de website, u kan deze opvragen op ons kantoor. Onze referentie voor dit pand is 01/4201.