
Ref: 04/16040 - € 260 000
Jouw expert
Kantoor Turnhout
Valérie Jacobs
Tel: +32 (0)14 45 10 11
GSM: +32 (0)489 86 70 36
valerie.jacobs@hillewaere.be
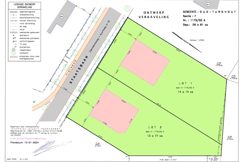
Grond te Oud-Turnhout
Te Koop - Staatsbaan 86 - LOT 1, 2360 Oud-Turnhout
Bouwgrond van 1.414 m² voor open bebouwing te Oud-Turnhout
Bouwgrond (LOT1) voor open bebouwing op een perceel van 1.414 m² gelegen op residentiële locatie te Oud-Turnhout.
De bouwkavel heeft een perceelsbreedte van 25m en is noord georiënteerd.
Bijzonderheden:
- de boscompensatie tbv 11.934 EUR werd voldaan door de verkavelaar, dewelke zal doorgerekend worden aan de koper.
- de bebouwde oppervlakte mag max 250m² bedragen met inbegrip van eventuele afzonderlijke gebouwen.
- het niet-bebouwbare gedeelte moet aangelegd worden met hoogstammig groen (het bestaande dient bewaard te worden). 10% van de perceelsoppervlakte mag ingenomen worden voor grasperken, speelruimten, tennisvelden en dergelijke.
- Verkavelingsvoorschriften en -plan op aanvraag te verkrijgen.
Technische details
Hoofdkenmerken
- Perceelopp.
- 1414 m²
- Perceelbreedte
- 25 m
- Stedenbouwkundige vergunning
- Neen
- Stedenbouwkundige bestemming
- Woonpark
- Dagvaarding uitgebracht?
- Neen
- Verkavelingsvergunning
- Ja
- Voorkooprecht
- Neen
- Overstromingsgevoeligheid
- Geen
- P-Score
- A
- G-Score
- A
- Maatregelenregister
- Neen