
Ref: 09/2809 - € 530 000
Jouw expert
Kantoor Heist-op-den-Berg
Joyce Olislaegers
Tel: +32 (0)15 69 59 59
GSM: +32 (0)493 99 36 62
joyce.olislaegers@hillewaere.be
Woning te Sint-Katelijne-Waver
Te Koop - Donk 5, 2860 Sint-Katelijne-Waver
Karaktervolle hoeve op een uitzonderlijk perceel van 23 are in Sint-Katelijne-Waver
In een rustige doodlopende straat te Sint-Katelijne-Waver, en toch vlot bereikbaar, bevindt zich deze karaktervolle hoeve op een uitzonderlijk ruim perceel van 23 are. De eigendom straalt authenticiteit en charme uit, maar dient volledig gerenoveerd te worden. Met een reeds goedgekeurde omgevingsvergunning biedt dit pand de mogelijkheid om te transformeren tot een hedendaagse woning met bijhorende praktijkruimte.
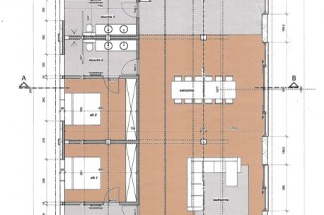
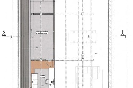
De vergunde plannen voorzien in een royale leefruimte van ca. 110 m² met open keuken en een prachtig zicht op de originele dakstructuur. Daarnaast zijn er drie ruime slaapkamers, elk met een eigen badkamer. De afzonderlijke praktijkruimte van circa 50 m² maakt deze eigendom bijzonder geschikt voor wie wonen en werken wenst te combineren.
Een unieke kans voor wie op zoek is naar rust, ruimte en een renovatieproject met uitzonderlijk veel potentieel op een centrale, goed bereikbare ligging.
Troeven:
• Goedgekeurde omgevingsvergunning
• Meer dan 300 m² bruikbare vloeroppervlakte
Technische details
Hoofdkenmerken
-
3 slaapkamers
-
3 badkamers
- Bouwjaar
- 1850
- Perceelopp.
- 2324 m²
- Perceelbreedte
- 39 m
- Perceeldiepte
- 60 m
- Tuin
- Ja
- Stedenbouwkundige vergunning
- Ja
- Stedenbouwkundige bestemming
- Woongebied
- Dagvaarding uitgebracht?
- Neen
- Verkavelingsvergunning
- Neen
- Voorkooprecht
- Neen
- Overstromingsgevoeligheid
- Geen
- P-Score
- B
- G-Score
- A
- Maatregelenregister
- Neen
20211118-0002494730-KNR-1