
Ref: 09/2850 - € 1 300
Jouw expert
Kantoor Heist-op-den-Berg
Joyce Olislaegers
Tel: +32 (0)15 69 59 59
GSM: +32 (0)493 99 36 62
joyce.olislaegers@hillewaere.be
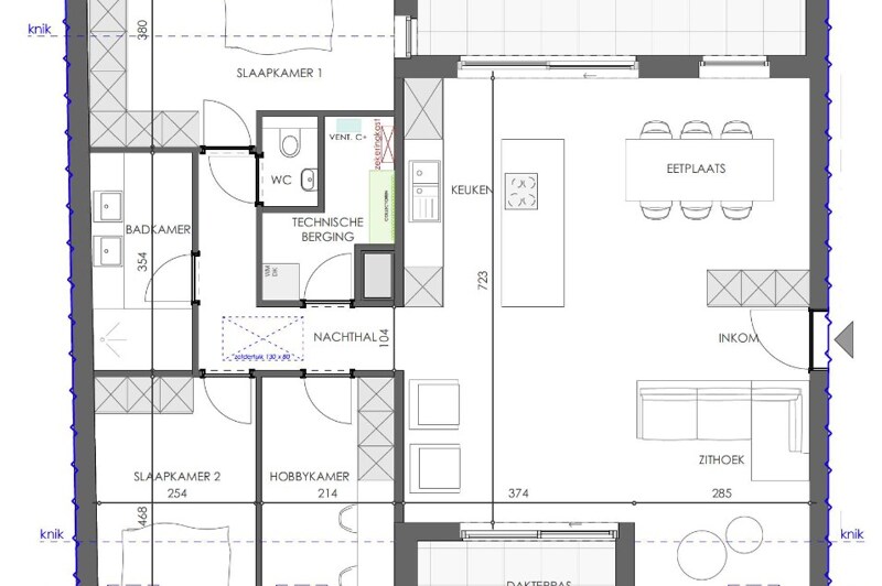
Dakappartement te Keerbergen
Optie Te Huur - Stationsstraat 25 - 7, 3140 Keerbergen
Nieuwbouwappartement in hartje Keerbergen
INDIEN U EEN BEZOEK WENST IN TE PLANNEN GELIEVE EEN BEZOEK AAN TE VRAGEN VIA WWW.HILLEWAERE.BE VIA DE RODE KNOP
In het centrum van Keerbergen vindt u dit kleinschalige nieuwbouwproject met 8 appartementen en een ondergrondse parking. De appartementen vallen op door hun hoogwaardige afwerking, het gebruik van duurzame materialen en de grote hoeveelheid natuurlijk licht. Bovendien voldoen ze aan de nieuwste energienormen (warmtepomp, zonnepanelen, vloerverwarming, …).
Dit dakappartement beschikt over een lichtrijke leefruimte met open keuken, een aparte berging, 3 slaapkamers, een badkamer met inloopdouche en een apart gastentoilet. Buiten geniet u van een 2 terrassen met een totale oppervlakte van 21,54 m².
Troeven:
- 2 ondergrondse staanplaatsen inbegrepen
- Kelderberging inbegrepen
- Lift aanwezig
- Gemeenschappelijke fietsenstalling
- Gemeenschappelijke kosten: €75
- Provisie voor verwarming en warm water: €100
- Mogelijkheid tot het huren van een extra staanplaats (€70/maand)
Het vinden van het geschikte huurpand is vaak een proces van lange adem. Bij Hillewaere Vastgoed willen we deze zoektocht daarom zo aangenaam mogelijk maken. We werken hiervoor samen met mijnhuurprofiel.be, een online tool die huurders vlot en snel helpt in het vinden van hun nieuwe droomwoonst.
Voordeel van een huurprofielTechnische details
Hoofdkenmerken
-
3 slaapkamers
-
1 badkamer
- Bouwjaar
- 2026
- Bewoonbare oppervlakte
- 139 m²
- Aantal toiletten
- 1
- Terras
- 21.54 m²
- Stedenbouwkundige vergunning
- -
- Stedenbouwkundige bestemming
- Niet opgegeven
- Dagvaarding uitgebracht?
- Neen
- Verkavelingsvergunning
- -
- Voorkooprecht
- -
Voorzieningen
- Lift
- Ja
Garage en parking
- Aantal parkeerplaatsen
- 2