Verkaveling Vlakke Land te Oud-Turnhout

Te Koop - Hooiwagen 0, 2360 Oud-Turnhout

Ref: 04/8506

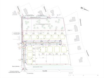
Verkaveling Vlakke Land omvat 13 residentieel gelegen bouwpercelen met oppervlakten tussen 900m² en 2.214m².
Vorige
Volgende

Verkaveling Vlakke Land is residentieel gelegen in een bosrijke omgeving, vlakbij het centrum van Oud-Turnhout en de autosnelweg E34 (Eindhoven - Antwerpen). De verkaveling bestaat uit 13 bouwpercelen met oppervlakten tussen 900m² en 2.214m². De percelen zijn geschikt voor het oprichten van een open bebouwing voor ééngezinwoning met maximum 2 bouwlagen en een dakverdieping. Ook zorgwoningen zijn toegestaan. Tevens is het mogelijk een gedeelte van de woning in te richten als nevenbestemming (kantoor, vrij beroep, handel, dienstverlening) mits bepaalde voorwaarden. Gelegen in woonparkgebied en in een goedgekeurde verkaveling. Verkavelingsvoorschriften op eenvoudig verzoek te bekomen via ons kantoor. De maximum bebouwbare oppervlakte is 250m². Een bijgebouw (max 75m²), tuinhuis, tuinpaden en oprit zijn toegestaan. Vrij van bouwverplichting: u bouwt wanneer en met wie u wenst. Voorzieningen: De straat is verhard met asfalt en uitgerust met de volgende nutsvoorzieningen: riolering, water, electriciteit, gas, TV-distributie, telefoon, openbare verlichting. De verkaveling is gedeeltelijk gelegen in effectief overstromingsgevoelig gebied. Teneinde tegemoet te komen aan de richtlijnen van de verkavelingsvergunning wordt een overstromingsbekken van 6.430m² aangelegd achter de verkaveling. Ook worden langsheen het wegtracé ruime baangrachten voorzien, waardoor elk risico van een verhoging van het waterpeil maximaal kan uitgesloten worden. Prijzen vanaf EUR 196.550 tot EUR 243.540 (exclusief aankoopkosten en kosten landmeter).

Max. hoogte van de vloerpas van de woning bedraagt +0.50 m.

Voorwaarden voor nevenbestemmingen:
1. de woonfunctie blijft behouden als hoofdfunctie
2. de nevenfunctie mag max 1/3de van het gebouwde bruto-volume in beslag nemen
3. de nevenfunctie moet zeer goed verenigbaar zijn met de woonomgeving en mag geen hinder veroorzaken zoals geluidshinder, geurhinder, verkeers- en parkeerhinder e.d.
4. de uitvoerder van de nevenactiviteit moet de bewoner zijn van deze woning
(Horecafuncties zijn niet toegelaten)

Lees meer Bekijk units

Units

Ref. Lot Breedte Diepte Opp. Prijs
04/8524 24 m 45 m 1089m2 Verkocht
04/8526 22.66 m 48 m 1087m2 Verkocht
04/8511 25 m 36 m 900m2 Verkocht
04/8514 25 m 39.76 m 1000m2 Verkocht
04/8525 11 22.66 m 48 m 1068m2 Verkocht
04/8527 13 22.66 m 70 m 1621m2 Verkocht
04/8515 7 24 m 72.50 m 2214m2 Verkocht
04/8522 8 24 m 68 m 1640m2 Verkocht
04/8523 9 24 m 68 m 1636m2 Verkocht

Plan een bezoek of vraag meer informatie over dit eigendom

  • Ik wens

Locatie