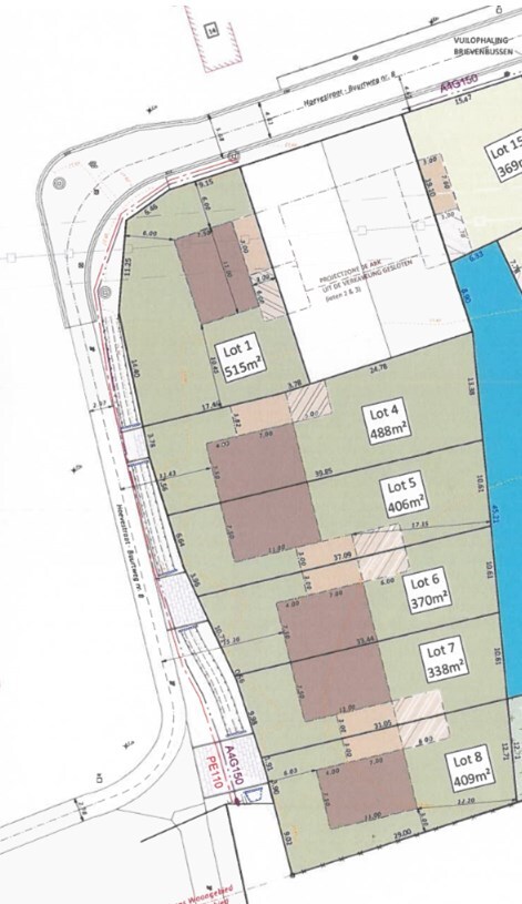
Landelijk gelegen verkaveling Hoevestraat Beerse - Lot 6
Binnen deze prachtige nieuwe verkaveling met landelijk karakter worden 6 loten aangeboden.
De oppervlakten van de percelen lopen van 338m² tot 737m².
Er zijn percelen voor open bebouwing alsook voor half open bebouwing met een bezonning van oost tot zuid naargelang het perceel.
De prijzen starten vanaf 145.000 euro excl. kosten
De bouwvoorschriften zijn op te vragen via kantoor.
Geen bouwverplichting
Lot 6
Mooi bouwrijp perceel grond van 370 m² gelegen in de nieuwe verkaveling Hoevestraat te Beerse.
Bouwvoorschriften op aanvraag.
Contacteer snel onze makelaar nieuwbouw@hillewaere.be of 014/45 10 11
Documenten
Momenteel zijn er geen documenten beschikbaar van dit pand op de website, u kan deze opvragen op ons kantoor. Onze referentie voor dit pand is 04/15821.
Technische details
Hoofdkenmerken
- Perceelopp.
- 370 m²
Plan een bezoek of vraag meer informatie over dit eigendom
De expert
met buitengewoon veel kennis over uw buurt
Kantoor te Antwerpen
Yves Deckers
Tel: +32 (0)3 287 80 00
GSM: +32 (0)493 48 14 36
yves.deckers@hillewaere.be
Maak kennis met Yves Meer eigendommen in de buurt Vraag uw verkoopanalyse aan
Locatie

Vraag hier uw gepersonaliseerd brandpolisvoorstel aan
Als één van de grootste onafhankelijke verzekeringskantoren is Hillewaere Verzekeringen uw ideale partner om uw eigendommen te beschermen. Een combinatie van gespecialiseerde maatschappijen, degelijke kennis en uitgebreide service garandeert een correcte financiële compensatie in geval van schade, verlies of diefstal van uw bezittingen.
Vraag uw offerte
Sluit eenvoudig een digitale hypotheek af!
Hillewaere Hypotheken wil als onafhankelijke kredietmakelaar een antwoord bieden het vaak ondoorzichtige doolhof van hypothecaire leningen.
Wij stellen uw persoonlijke situatie voorop en zoeken naar die formule(s) die het beste bij uw leven aansluit(en). Dankzij onze objectieve hypotheekhulp op maat weet u dus exact waarvoor u kiest en waarom.

Bereken gemakkelijk jouw renovatiekosten!
Eindeloos wachten op aannemers en dan verschillende offertes vergelijken voor de renovatiewerken? Dat is verleden tijd met Setle!
In deze handige tool krijg je meteen marktconforme tarieven voor alle verbouwingswerken die van toepassing zijn en kan je gemakkelijk de renovatiekosten berekenen voor het pand dat jouw hart sneller laat slaan. Zo heb je ook ineens een goede leidraad om de aangepaste tarieven van je aannemer aan af te toetsen.
Bereken de renovatiekost op dit pandBereken uw energiekost voor deze woning.
Dankzij de digitale technologie van June Energy maakt u een persoonlijke simulatie van de energiekost voor deze woning op maat van uw leven en woonsituatie.
Geschat verbruik elektriciteit
Geschat verbruik gas
Geschatte energiekost
= € /jaar
Berekenen van uw energiekost
