Woning te Ravels

Te Huur - Schoolstraat 66, 2381 Ravels

Ref: 04/16541

€ 1 650

Vorige
Volgende
BEN nieuwbouwwoning op top locatie te Weelde

BEN nieuwbouwwoning op top locatie te Weelde

INDIEN U EEN BEZOEK WENST IN TE PLANNEN GELIEVE EEN BEZOEK AAN TE VRAGEN VIA WWW.HILLEWAERE.BE VIA DE RODE KNOP.

Deze halfopen BEN nieuwbouwwoning is gelegen op een mooie locatie te Weelde. Vlakbij het centrum en op wandelafstand van winkels, school en openbaar vervoer.

De indeling van de woning is de volgende:
Het gelijkvloers bestaat uit een inkom met een apart gastentoilet, een grote woonruimte met een eet- en zithoek en een volledig ingerichte open keuken voorzien van alle luxe toestellen.
Verder treffen we een ruime wasplaats/ technische ruimte.

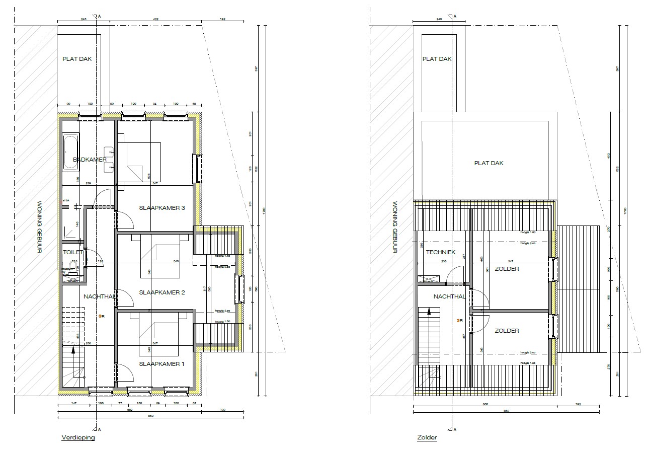
Op de eerste verdieping bevinden zich 3 ruime slaapkamers op vloerparket en een badkamer voorzien van een inloopdouche, ligbad en dubbele lavabo. Apart toilet op de overloop.

De tweede verdieping is een extra troef en vlot bereikbaar met een vaste trap en kan dienen als extra slaapkamers (2) of ontspanningsruimte. Verder treffen we hier ook nog de volledig afgesloten technische ruimte aan.

De tuin is onderhoudsvriendelijk, aangeplant met siergrassen. Zeer ruime garage met automatische poort achteraan op het perceel.

Troeven:
- Vloerverwarming op gelijkvloers en verdieping
- Warmtepomp
- 14 zonnepanelen
- Kindvriendelijke locatie

mijnhuurprofiel.be

Het vinden van het geschikte huurpand is vaak een proces van lange adem. Bij Hillewaere Vastgoed willen we deze zoektocht daarom zo aangenaam mogelijk maken. We werken hiervoor samen met mijnhuurprofiel.be, een online tool die huurders vlot en snel helpt in het vinden van hun nieuwe droomwoonst.

Voordeel van een huurprofiel

Technische details

Hoofdkenmerken

  • 5 slaapkamers
  • 1 badkamer
Beschikbaar vanaf
Onmiddellijk
Bouwjaar
2025
Perceelopp.
462 m²
Bewoonbare oppervlakte
215 m²
Aantal toiletten
2
Tuin
Ja
Overstromingsgevoeligheid
Geen
P-Score
C
G-Score
C

Garage en parking

Aantal garages
1
Aantal parkeerplaatsen
4
Certificaatnummer:
13035-G-OMV_2023158208/EP11928/K736/D01/SD001

Plan een bezoek of vraag meer informatie over dit eigendom

Bij Hillewaere Vastgoed willen we de zoektocht naar een geschikte woning zo aangenaam mogelijk maken en u de beste service aanbieden. We werken hiervoor met mijnhuurprofiel.be, een online tool die huurders vlot en snel helpt in het vinden van hun nieuwe droomwoonst. Via de knop "bezoek aanvragen" kan u alvast uw huurprofiel aanmaken en plannen wij uw bezoekaanvraag in.

Locatie

 

Vraag hier uw gepersonaliseerd brandpolisvoorstel aan

Als één van de grootste onafhankelijke verzekeringskantoren is Hillewaere Verzekeringen uw ideale partner om uw eigendommen te beschermen. Een combinatie van gespecialiseerde maatschappijen, degelijke kennis en uitgebreide service garandeert een correcte financiële compensatie in geval van schade, verlies of diefstal van uw bezittingen.

Vraag uw offerte

Sluit eenvoudig een digitale hypotheek af!

Hillewaere Hypotheken wil als onafhankelijke kredietmakelaar een antwoord bieden het vaak ondoorzichtige doolhof van hypothecaire leningen.

Wij stellen uw persoonlijke situatie voorop en zoeken naar die formule(s) die het beste bij uw leven aansluit(en). Dankzij onze objectieve hypotheekhulp op maat weet u dus exact waarvoor u kiest en waarom.

Simuleer uw hypotheek-aanvraag Plan uw afspraak

Bereken gemakkelijk jouw renovatiekosten!

Eindeloos wachten op aannemers en dan verschillende offertes vergelijken voor de renovatiewerken? Dat is verleden tijd met Setle!

In deze handige tool krijg je meteen marktconforme tarieven voor alle verbouwingswerken die van toepassing zijn en kan je gemakkelijk de renovatiekosten berekenen voor het pand dat jouw hart sneller laat slaan. Zo heb je ook ineens een goede leidraad om de aangepaste tarieven van je aannemer aan af te toetsen.

Bereken de renovatiekost op dit pand

Bereken uw energiekost voor deze woning.

Dankzij de digitale technologie van June Energy maakt u een persoonlijke simulatie van de energiekost voor deze woning op maat van uw leven en woonsituatie.

- +

Geschat verbruik elektriciteit

kWH/jaar

Geschat verbruik gas

kWH/jaar

Geschatte energiekost

= € /jaar

Berekenen van uw energiekost

Bereken snel en eenvoudig uw investeringsrendement

Bekijk via onze online simulator wat deze eigendom zou opbrengen als investering!