Uniek landhuis in casco winddichte staat op een terrein van 1158m² gelegen te Herk-De-Stad.
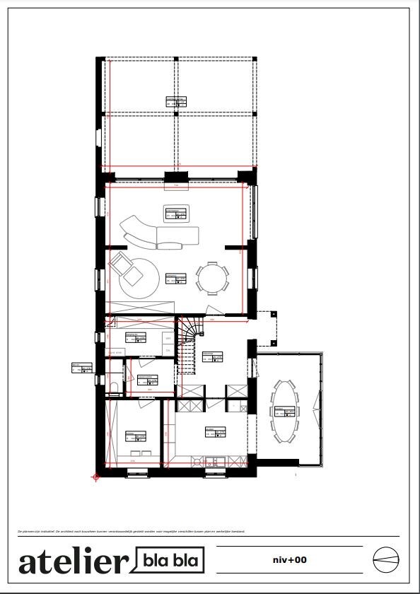
Uniek en karaktervol landhuis van +- 260m² in casco /winddichte staat.
Op zoek naar een statig en authentiek landhuis met mogelijkheden? Dit landhuis in casco winddichte staat biedt een unieke kans om een karaktervol en sfeervol thuis te creëren in het hart van Herk-de-Stad.
Het pand ademt een authentiek gevoel en is perfect voor liefhebbers van historisch erfgoed, die de charme en details van het verleden willen combineren met hun eigen visie en stijl.
Het landhuis heeft een mooie architectuur en een statige gevel, waardoor het direct een imposante indruk maakt.
Koop het pand in casco winddichte staat en maak het volledig naar wens af. Of kies ervoor om het volledig afgewerkt aan te kopen, zodat je direct kunt genieten van jouw droomwoning.
Gelegen in een rustige, maar toch centrale omgeving in Herk-de-Stad, biedt het landhuis de perfecte balans tussen natuur en bereikbaarheid.
Of u nu houdt van een klassieke inrichting of moderne accenten wilt toevoegen, dit huis biedt alle mogelijkheden.
Laat je verbeelding de vrije loop en geef dit prachtige landhuis de finishing touch die het verdient. Een uniek project voor wie van een authentieke, statige woning houdt.
Dossier kan op simpel verzoek worden aangeleverd.
Buitengewone kenmerken;
* Uniek en karaktervol pand
* mooi terrein van 1158m²
* Ideale omgeving en bereikbaarheid
* Kan casco aangekocht worden of instapklaar opgeleverd door de huidige Architect "Atelier BlaBla"
* Epb starverklaring van 63,59kwh
Documenten
Momenteel zijn er geen documenten beschikbaar van dit pand op de website, u kan deze opvragen op ons kantoor. Onze referentie voor dit pand is 10/1909.
Technische details
Hoofdkenmerken
-
4 slaapkamers
-
2 badkamers
- Renovatiejaar
- 2025
- Perceelopp.
- 1158 m²
- Bewoonbare oppervlakte
- 259 m²
- Aantal verdiepingen
- 2
- Aantal toiletten
- 2
- Tuin
- Ja
- Stedenbouwkundige vergunning
- -
- Stedenbouwkundige bestemming
- Woongebied met landelijk karakter
- Dagvaarding uitgebracht?
- Neen
- Verkavelingsvergunning
- -
- Voorkooprecht
- -
- Overstromingsgevoeligheid
- Geen
- P-Score
- A
- G-Score
- A

71024-G-OMV_2022047679/EP15513/SV/A001/D01
Plan een bezoek of vraag meer informatie over dit eigendom
De expert
met buitengewoon veel kennis over uw buurt
Kantoor te Hasselt
Alexander Willems
Tel: +32 (0)11 36 86 86
GSM: +32 (0)478 33 66 36
alexander.willems@hillewaere.be
Maak kennis met Alexander Meer eigendommen in de buurt Vraag uw verkoopanalyse aan
Locatie
Mogelijks ook interessant voor u...

Villa te Heusden-Zolder
€ 665 000

Vraag hier uw gepersonaliseerd brandpolisvoorstel aan
Als één van de grootste onafhankelijke verzekeringskantoren is Hillewaere Verzekeringen uw ideale partner om uw eigendommen te beschermen. Een combinatie van gespecialiseerde maatschappijen, degelijke kennis en uitgebreide service garandeert een correcte financiële compensatie in geval van schade, verlies of diefstal van uw bezittingen.
Vraag uw offerte
Sluit eenvoudig een digitale hypotheek af!
Hillewaere Hypotheken wil als onafhankelijke kredietmakelaar een antwoord bieden het vaak ondoorzichtige doolhof van hypothecaire leningen.
Wij stellen uw persoonlijke situatie voorop en zoeken naar die formule(s) die het beste bij uw leven aansluit(en). Dankzij onze objectieve hypotheekhulp op maat weet u dus exact waarvoor u kiest en waarom.

Bereken gemakkelijk jouw renovatiekosten!
Eindeloos wachten op aannemers en dan verschillende offertes vergelijken voor de renovatiewerken? Dat is verleden tijd met Setle!
In deze handige tool krijg je meteen marktconforme tarieven voor alle verbouwingswerken die van toepassing zijn en kan je gemakkelijk de renovatiekosten berekenen voor het pand dat jouw hart sneller laat slaan. Zo heb je ook ineens een goede leidraad om de aangepaste tarieven van je aannemer aan af te toetsen.
Bereken de renovatiekost op dit pandBereken uw energiekost voor deze woning.
Dankzij de digitale technologie van June Energy maakt u een persoonlijke simulatie van de energiekost voor deze woning op maat van uw leven en woonsituatie.
Geschat verbruik elektriciteit
Geschat verbruik gas
Geschatte energiekost
= € /jaar
Berekenen van uw energiekost
