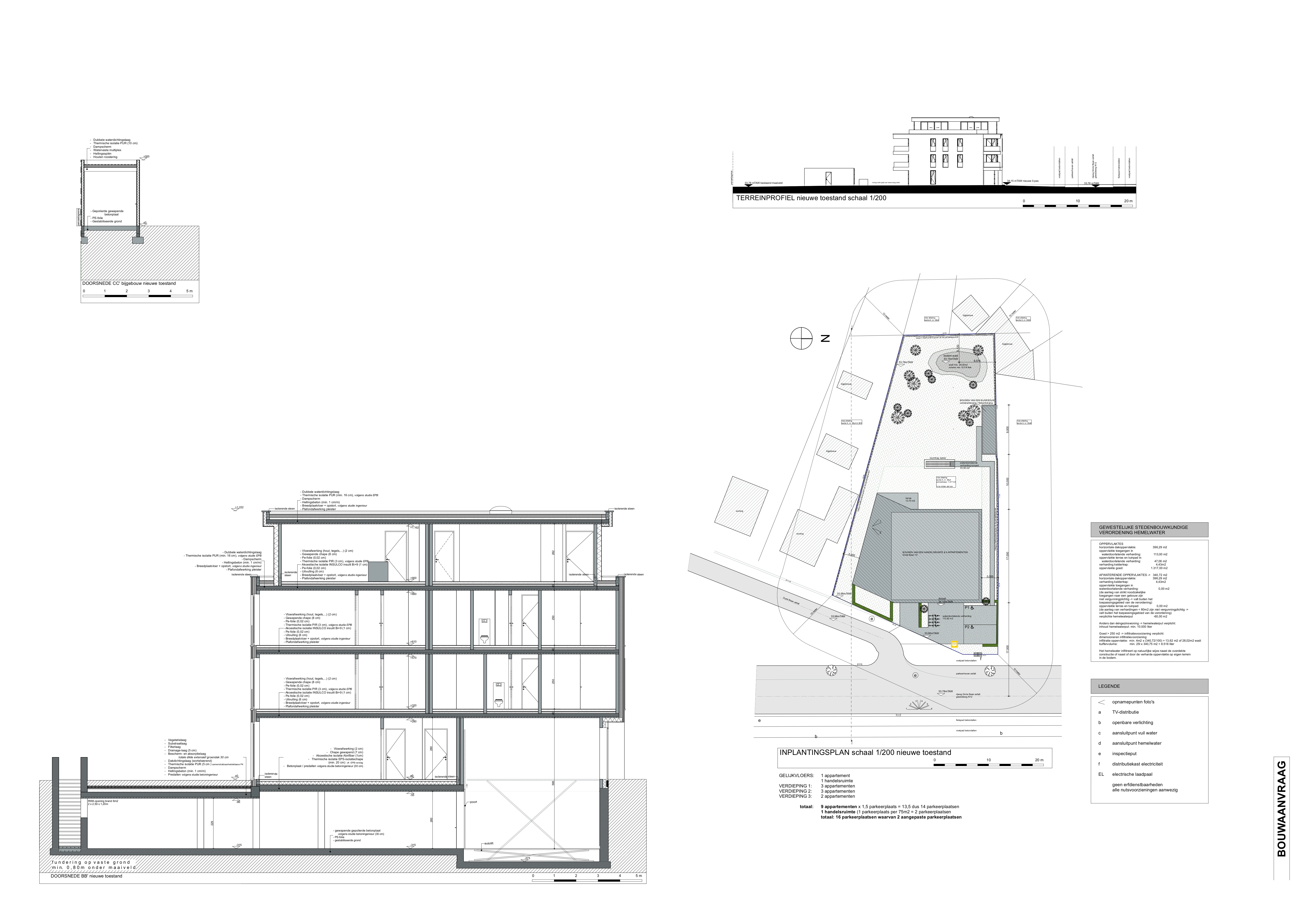
TE HUUR: 9 nieuwbouwappartementen in hartje Ravels
Nieuwbouwappartementen in hartje Ravels. Wonen in de dorpskern nabij alle voorzieningen én voor de natuurliefhebbers: vlakbij de prachtige Staatsbossen.
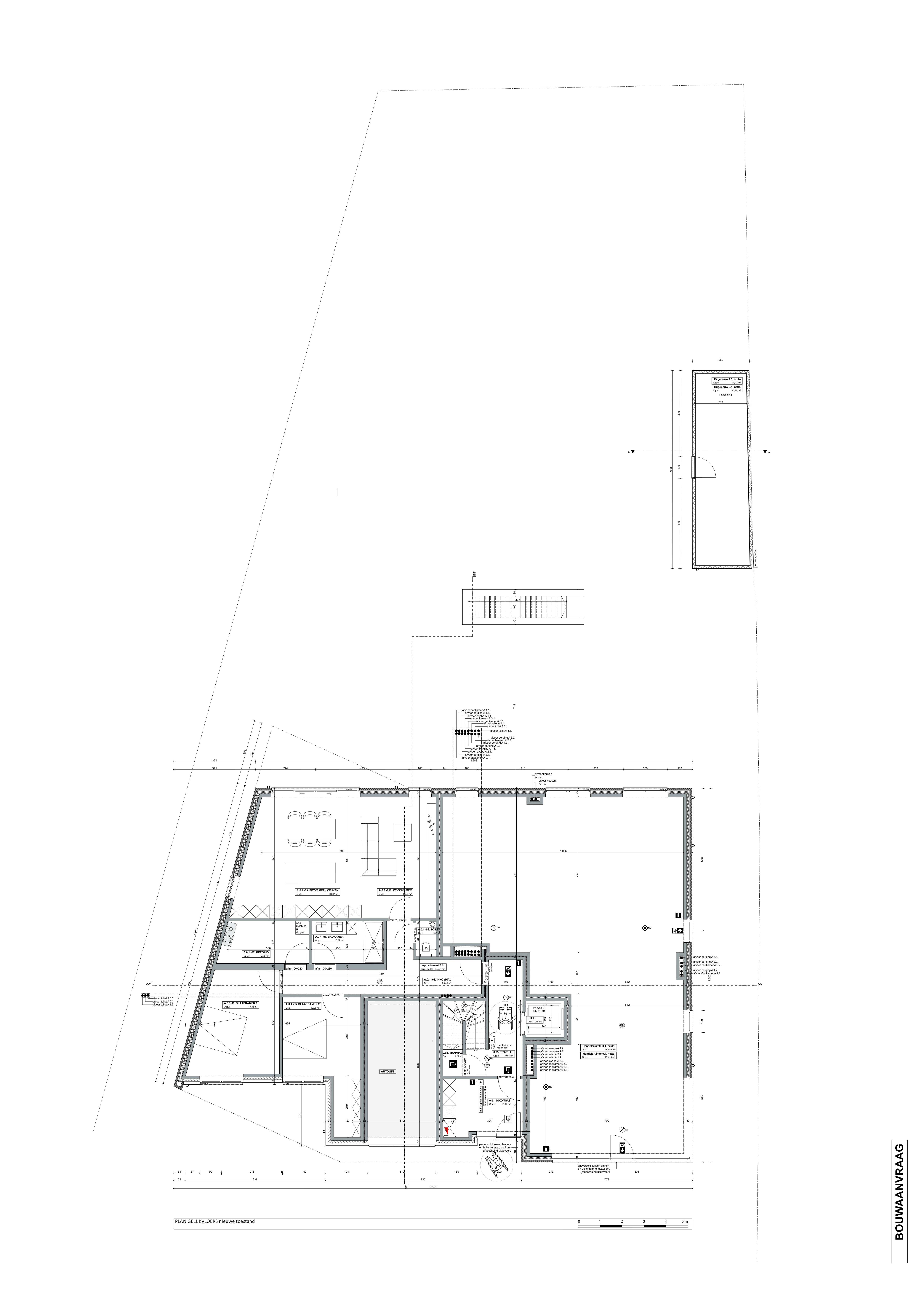
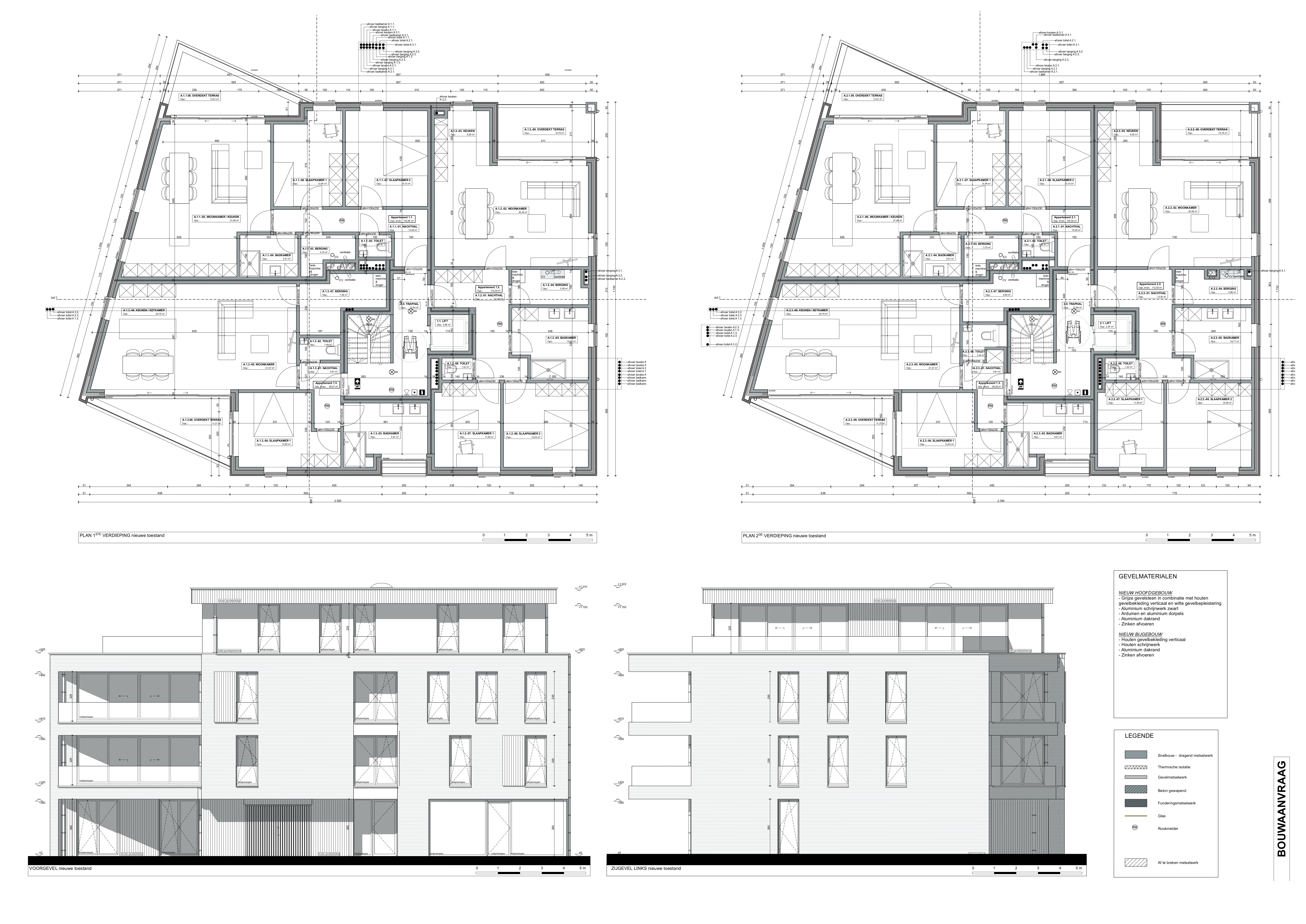
Hier bouwt men een stijlvol nieuwbouwproject met appartementen van 102 tot 132 m². Huren kan vanaf €1.000 per maand (excl. servicekosten).
Knappe architectuur met een kwalitatieve afwerking, duurzame materialen en véél lichtinval. De appartementen worden gebouwd volgens de hedendaagse energienormen.
De gemeenschappelijke parktuin biedt bewoners een groene omgeving om zich te ontspannen met een goed boek of gewoon tot rust te komen. Het onderhoud is volledig in handen van een tuinman, zodat u zorgeloos kan genieten, zonder verplichtingen van een eigen tuin.
Een thuis die niet alleen praktisch, maar ook gewoon écht mooi is.
Wat mag je verwachten?
- 1 of 2 slaapkamers
- Aangename terrassen van 11 m² tot 21 m²
- Volledig opgeschilderd
- Energiezuinige technieken zoals vloerverwarming én -koeling, warmtepomp en zonnepanelen.
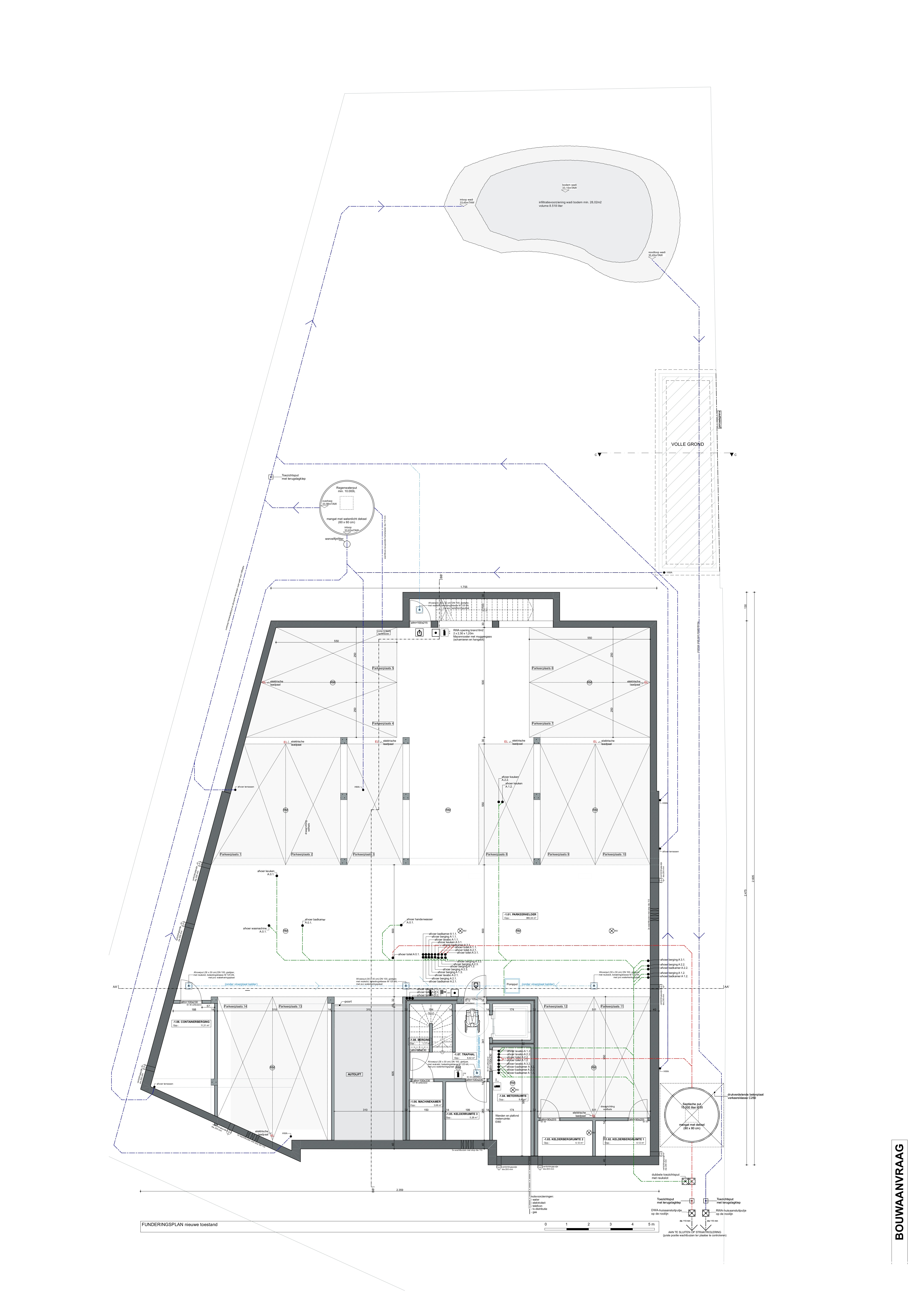
- Een ondergrondse staanplaats (inbegrepen in de huurprijs!), bereikbaar via een autolift
- Gemeenschappelijke fietsenberging.
- Gemeenschappelijke parktuin
- Servicekosten: 125 € per maand
Timing? De oplevering is voorzien mei - juni 2026. Alles nog in opbouw dus, maar dat geeft jou de kans om je toekomstige thuis nu al veilig te stellen.
Maak gerust een afspraak op kantoor via de rode knop 'bezoek inplannen'. Dan bekijken we of er een appartement tussen zit dat helemaal bij je past.

Het vinden van het geschikte huurpand is vaak een proces van lange adem. Bij Hillewaere Vastgoed willen we deze zoektocht daarom zo aangenaam mogelijk maken. We werken hiervoor samen met mijnhuurprofiel.be, een online tool die huurders vlot en snel helpt in het vinden van hun nieuwe droomwoonst.
Voordeel van een huurprofielTechnische details
Hoofdkenmerken
- Beschikbaar vanaf
- 2026-05-01
- Bouwjaar
- 2025
Garage en parking
- Aantal parkeerplaatsen
- 1
Mede-eigendom & servicekosten
- Gemeenschappelijke servicekosten (per maand)
- € 125
Plan een bezoek of vraag meer informatie over dit eigendom
Bij Hillewaere Vastgoed willen we de zoektocht naar een geschikte woning zo aangenaam mogelijk maken en u de beste service aanbieden. We werken hiervoor met mijnhuurprofiel.be, een online tool die huurders vlot en snel helpt in het vinden van hun nieuwe droomwoonst. Via de knop "bezoek aanvragen" kan u alvast uw huurprofiel aanmaken en plannen wij uw bezoekaanvraag in.
Locatie
Mogelijks ook interessant voor u...

Vraag hier uw gepersonaliseerd brandpolisvoorstel aan
Als één van de grootste onafhankelijke verzekeringskantoren is Hillewaere Verzekeringen uw ideale partner om uw eigendommen te beschermen. Een combinatie van gespecialiseerde maatschappijen, degelijke kennis en uitgebreide service garandeert een correcte financiële compensatie in geval van schade, verlies of diefstal van uw bezittingen.
Vraag uw offerte
Sluit eenvoudig een digitale hypotheek af!
Hillewaere Hypotheken wil als onafhankelijke kredietmakelaar een antwoord bieden het vaak ondoorzichtige doolhof van hypothecaire leningen.
Wij stellen uw persoonlijke situatie voorop en zoeken naar die formule(s) die het beste bij uw leven aansluit(en). Dankzij onze objectieve hypotheekhulp op maat weet u dus exact waarvoor u kiest en waarom.

Bereken gemakkelijk jouw renovatiekosten!
Eindeloos wachten op aannemers en dan verschillende offertes vergelijken voor de renovatiewerken? Dat is verleden tijd met Setle!
In deze handige tool krijg je meteen marktconforme tarieven voor alle verbouwingswerken die van toepassing zijn en kan je gemakkelijk de renovatiekosten berekenen voor het pand dat jouw hart sneller laat slaan. Zo heb je ook ineens een goede leidraad om de aangepaste tarieven van je aannemer aan af te toetsen.
Bereken de renovatiekost op dit pandBereken uw energiekost voor deze woning.
Dankzij de digitale technologie van June Energy maakt u een persoonlijke simulatie van de energiekost voor deze woning op maat van uw leven en woonsituatie.
Geschat verbruik elektriciteit
Geschat verbruik gas
Geschatte energiekost
= € /jaar
Berekenen van uw energiekost
