Commercieel kantoor te Oosteeklo

Te Koop - Oosteeklodorp 25, 9968 Oosteeklo

Ref: 08/8090

€ 199 000

Vorige
Volgende
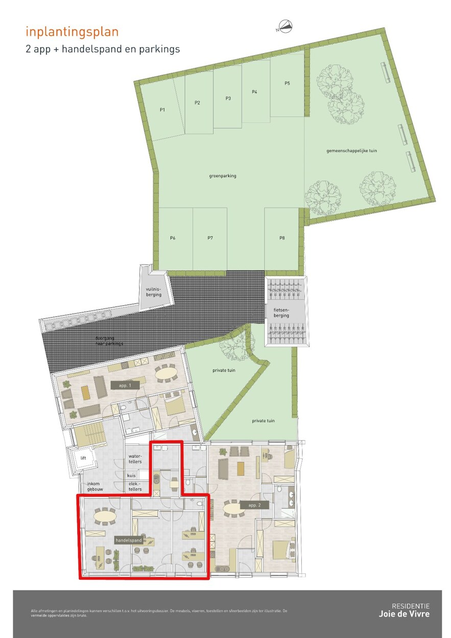
Commerciële ruimte op toplocatie in Oosteeklo

Commerciële ruimte op toplocatie in Oosteeklo

Bent u op zoek naar een commerciële ruimte in een charmante en goed bereikbare omgeving?

Deze handelsruimte/ kantoor in Oosteeklo biedt u alle mogelijkheden om uw zaak uit te bouwen in een groeiende regio
.
De ruimte wordt casco verkocht, zodat u de volledige vrijheid heeft om de inrichting en afwerking naar uw eigen wensen te realiseren. Het pand is ontworpen met aandacht voor energie-efficiëntie en voldoet aan de BEN-normen.

Belangrijk voordeel: De verkoop gebeurt onder btw, waarbij de 6% btw-regeling mogelijk is (indien u voldoet aan de voorwaarden). Ook ideaal voor investeerders die op zoek zijn naar een rendabele commerciële investering.
Contacteer ons voor meer informatie en een afspraak ter plaatse.

Documenten

Momenteel zijn er geen documenten beschikbaar van dit pand op de website, u kan deze opvragen op ons kantoor. Onze referentie voor dit pand is 08/8090.

Technische details

Hoofdkenmerken

Bouwjaar
2024
Perceelopp.
90 m²
Aantal verdiepingen
3
Riolering
Ja
Stedenbouwkundige vergunning
Ja
Stedenbouwkundige bestemming
Woongebied
Dagvaarding uitgebracht?
Neen
Verkavelingsvergunning
Ja
Voorkooprecht
Neen
Overstromingsgevoeligheid
Geen

Voorzieningen

Lift
Ja
Airco
Ja

Plan een bezoek of vraag meer informatie over dit eigendom

  • Ik wens

Bernard Beert De expert
met buitengewoon veel kennis over uw buurt

Kantoor te Gent
Bernard Beert
Tel: +32 (0)9 395 16 16
GSM: +32 (0)477 78 46 78
bernard.beert@hillewaere.be

Maak kennis met Bernard Meer eigendommen in de buurt Vraag uw verkoopanalyse aan

Locatie

 

Mogelijks ook interessant voor u...

Uw eigendom hier?

Vraag hier uw gepersonaliseerd brandpolisvoorstel aan

Als één van de grootste onafhankelijke verzekeringskantoren is Hillewaere Verzekeringen uw ideale partner om uw eigendommen te beschermen. Een combinatie van gespecialiseerde maatschappijen, degelijke kennis en uitgebreide service garandeert een correcte financiële compensatie in geval van schade, verlies of diefstal van uw bezittingen.

Vraag uw offerte

Sluit eenvoudig een digitale hypotheek af!

Hillewaere Hypotheken wil als onafhankelijke kredietmakelaar een antwoord bieden het vaak ondoorzichtige doolhof van hypothecaire leningen.

Wij stellen uw persoonlijke situatie voorop en zoeken naar die formule(s) die het beste bij uw leven aansluit(en). Dankzij onze objectieve hypotheekhulp op maat weet u dus exact waarvoor u kiest en waarom.

Simuleer uw hypotheek-aanvraag Plan uw afspraak

Bereken gemakkelijk jouw renovatiekosten!

Eindeloos wachten op aannemers en dan verschillende offertes vergelijken voor de renovatiewerken? Dat is verleden tijd met Setle!

In deze handige tool krijg je meteen marktconforme tarieven voor alle verbouwingswerken die van toepassing zijn en kan je gemakkelijk de renovatiekosten berekenen voor het pand dat jouw hart sneller laat slaan. Zo heb je ook ineens een goede leidraad om de aangepaste tarieven van je aannemer aan af te toetsen.

Bereken de renovatiekost op dit pand

Bereken uw energiekost voor deze woning.

Dankzij de digitale technologie van June Energy maakt u een persoonlijke simulatie van de energiekost voor deze woning op maat van uw leven en woonsituatie.

- +

Geschat verbruik elektriciteit

kWH/jaar

Geschat verbruik gas

kWH/jaar

Geschatte energiekost

= € /jaar

Berekenen van uw energiekost

Bereken snel en eenvoudig uw investeringsrendement

Bekijk via onze online simulator wat deze eigendom zou opbrengen als investering!