Vorige
Volgende
Nieuwbouw bedrijfsgebouw met casco kantoor, opslagruimte en conciërge-appartement – flexibel verhuurbaar

Nieuwbouw bedrijfsgebouw met casco kantoor, opslagruimte en conciërge-appartement – flexibel verhuurbaar

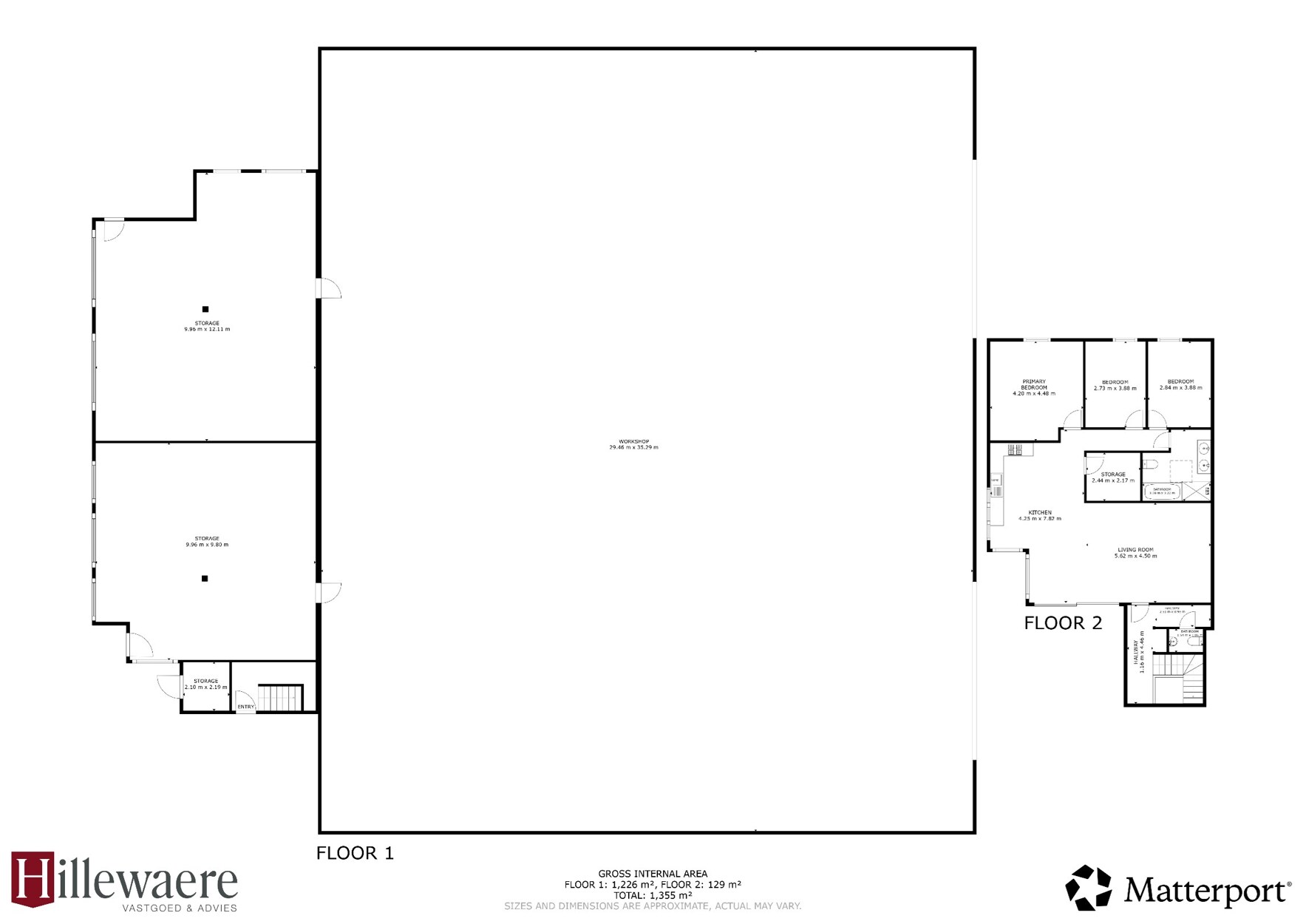
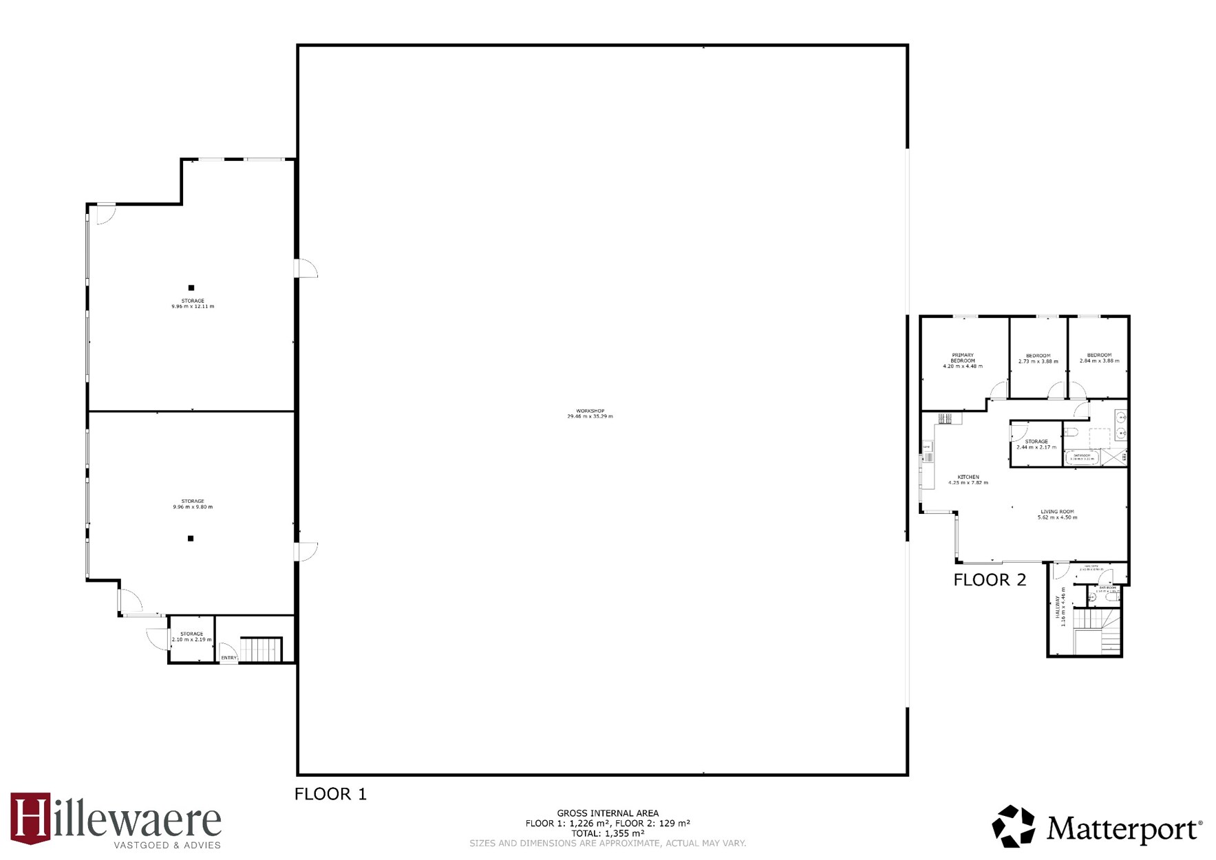
Modern nieuwbouw bedrijfsgebouw gelegen in het industriegebied van Zutendaal, met een totale bedrijfsoppervlakte van 1.000 m², ideaal voor opslag, productie of logistiek. De bedrijfsruimte is volledig verhuurbaar of opsplitsbaar in 2 × 500 m², waardoor het pand perfect inspeelt op groeiende of schaalbare ondernemingen.
Aansluitend zijn er twee kantoorruimtes van telkens 120 m², beschikbaar in casco of volledig afgewerkte staat, afhankelijk van de gewenste afwerking en het gebruik.
Daarnaast beschikt het complex over een ruim conciërge-appartement van circa 140 m², geschikt voor bewoning of ondersteunend professioneel gebruik.

BTW-verhuur is mogelijk.
Alle entiteiten zijn afzonderlijk verhuurbaar.
De hallen worden uitgerust met basisfaciliteiten, waaronder verwarming op aardgas (< 300 kW) en airconditioning.
De uiteindelijke huurder of exploitant staat zelf in voor het aanvragen en verkrijgen van eventuele vereiste exploitatie- en milieuvergunningen.

Huurprijzen (excl. btw)
• Totale huurprijs (volledig complex): €6.917 – €7.317/maand)
• Bedrijfsunit 1.000 m²: €4.167/maand
(€2.083/maand per unit bij opsplitsing in 2 × 500 m²)
• Kantoorruimte 2 x 120 m²:
Casco: €800/maand per kantoor
Afgewerkt: €950 – €1.000/maand per kantoor, afhankelijk van de gekozen afwerking
• Appartement 140 m²: €1.150/maand

Troeven
• Nieuwbouw
• Flexibele indeling en opsplitsbaarheid
• BTW-verhuur mogelijk
• Strategische ligging in industriegebied Zutendaal
• Geschikt voor KMO’s, logistiek, productie en dienstverlenende activiteiten
• Combinatie van bedrijfsruimte, kantoren en woonentiteit op één site

Technische details

Hoofdkenmerken

Beschikbaar vanaf
Onmiddellijk
Bouwjaar
2025
Perceelopp.
8573 m²
Perceelbreedte
53 m
Perceeldiepte
160 m
Overstromingsgevoeligheid
Geen
P-Score
A
G-Score
A
A
Certificaatnummer:
71067-G-OMV_2019058869/EP17609/A001/D01/SD003

Plan een bezoek of vraag meer informatie over dit eigendom

Bij Hillewaere Vastgoed willen we de zoektocht naar een geschikte woning zo aangenaam mogelijk maken en u de beste service aanbieden. We werken hiervoor met mijnhuurprofiel.be, een online tool die huurders vlot en snel helpt in het vinden van hun nieuwe droomwoonst. Via de knop "bezoek aanvragen" kan u alvast uw huurprofiel aanmaken en plannen wij uw bezoekaanvraag in.

  • Ik wens

Doel verhuur

Op welke data / uren is een bezoek voor u mogelijk?*

Vrijblijvende info die u met ons wil delen:

Welke specifieke info wenst u te ontvangen?

Melisa Ataseven De expert
met buitengewoon veel kennis over uw buurt

Kantoor te Hasselt
Melisa Ataseven
Tel: +32 (0)11 36 86 86
GSM: +32(0)485 15 30 90
melisa.ataseven@hillewaere.be

Maak kennis met Melisa Meer eigendommen in de buurt Vraag uw verkoopanalyse aan

Locatie

 

Mogelijks ook interessant voor u...

Uw eigendom hier?

Vraag hier uw gepersonaliseerd brandpolisvoorstel aan

Als één van de grootste onafhankelijke verzekeringskantoren is Hillewaere Verzekeringen uw ideale partner om uw eigendommen te beschermen. Een combinatie van gespecialiseerde maatschappijen, degelijke kennis en uitgebreide service garandeert een correcte financiële compensatie in geval van schade, verlies of diefstal van uw bezittingen.

Vraag uw offerte

Sluit eenvoudig een digitale hypotheek af!

Hillewaere Hypotheken wil als onafhankelijke kredietmakelaar een antwoord bieden het vaak ondoorzichtige doolhof van hypothecaire leningen.

Wij stellen uw persoonlijke situatie voorop en zoeken naar die formule(s) die het beste bij uw leven aansluit(en). Dankzij onze objectieve hypotheekhulp op maat weet u dus exact waarvoor u kiest en waarom.

Simuleer uw hypotheek-aanvraag Plan uw afspraak

Bereken gemakkelijk jouw renovatiekosten!

Eindeloos wachten op aannemers en dan verschillende offertes vergelijken voor de renovatiewerken? Dat is verleden tijd met Setle!

In deze handige tool krijg je meteen marktconforme tarieven voor alle verbouwingswerken die van toepassing zijn en kan je gemakkelijk de renovatiekosten berekenen voor het pand dat jouw hart sneller laat slaan. Zo heb je ook ineens een goede leidraad om de aangepaste tarieven van je aannemer aan af te toetsen.

Bereken de renovatiekost op dit pand

Bereken uw energiekost voor deze woning.

Dankzij de digitale technologie van June Energy maakt u een persoonlijke simulatie van de energiekost voor deze woning op maat van uw leven en woonsituatie.

- +

Geschat verbruik elektriciteit

kWH/jaar

Geschat verbruik gas

kWH/jaar

Geschatte energiekost

= € /jaar

Berekenen van uw energiekost

Bereken snel en eenvoudig uw investeringsrendement

Bekijk via onze online simulator wat deze eigendom zou opbrengen als investering!