Woning te Opitter

Te Koop - Tongerlostraat 15, 3960 Opitter

Ref: 10/2062

€ 569 000

Vorige
Volgende
Exclusieve nieuwbouwwoning aan 6% btw (mits voldoen aan de voorwaarden)

Exclusieve nieuwbouwwoning aan 6% btw (mits voldoen aan de voorwaarden)

In het rustige hart van Opitter, midden in het GrensPark Kempenbroek en aan de oever van de Itterbeek, bevindt zich deze energie-neutrale nieuwbouwwoning waar luxe, licht en natuur perfect samenkomen.

De woning is volledig en hoogwaardig afgewerkt en instapklaar. Grote raampartijen zorgen voor een overvloed aan natuurlijk licht en een sterke verbinding met de tuin. Zelfs de gang geniet van daglicht dankzij een dakraam. De leefruimte sluit aan op het overdekte terras en de rustige tuin aan het water.
De open keuken is luxueus uitgerust met onder meer een Quooker, BORA-kookplaat, keramisch werkblad en een royaal kookeiland. Aansluitend bevindt zich een praktische berging.
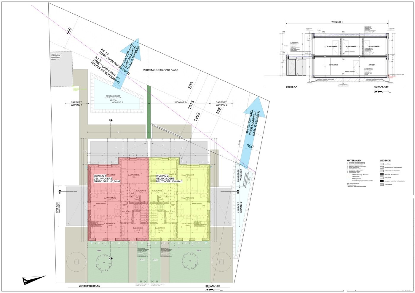
Op de verdieping zijn er vier volwaardige slaapkamers, waarvan drie met toegang tot een dakterras. De badkamer is stijlvol afgewerkt met ligbad, inloopdouche en dubbele wastafel.

Extra troeven zijn onder meer vloerverwarming en -koeling, warmtepomp, ventilatiesysteem D, domotica en voorbereiding voor alarm en airco.

Een woning waar u niets meer aan hoeft te doen, in een uitzonderlijk rustige en natuurlijke omgeving.

Documenten

Momenteel zijn er geen documenten beschikbaar van dit pand op de website, u kan deze opvragen op ons kantoor. Onze referentie voor dit pand is 10/2062.

Technische details

Hoofdkenmerken

  • 4 slaapkamers
  • 1 badkamer
Bouwjaar
2025
Perceelopp.
449 m²
Bewoonbare oppervlakte
164 m²
Perceelbreedte
18 m
Perceeldiepte
40 m
Gevelbreedte
8.77 m
Aantal verdiepingen
2
Woonkamer
43.50 m²
Keuken
22.80 m²
Aantal toiletten
2
Tuin
300 m²
Riolering
Ja
Stedenbouwkundige vergunning
Ja
Stedenbouwkundige bestemming
Woongebied
Dagvaarding uitgebracht?
Neen
Verkavelingsvergunning
Ja
Voorkooprecht
Neen
Overstromingsgevoeligheid
Geen
P-Score
P-Score D

Voorzieningen

Alarm
Ja
Airco
Ja
Certificaatnummer:
72004-G-OMV_2024026846/EP18437/SV/A001/D01/SD001

Plan een bezoek of vraag meer informatie over dit eigendom

  • Ik wens

Melisa Ataseven De expert
met buitengewoon veel kennis over uw buurt

Kantoor te Hasselt
Melisa Ataseven
Tel: +32 (0)11 36 86 86
GSM: +32(0)485 15 30 90
melisa.ataseven@hillewaere.be

Maak kennis met Melisa Meer eigendommen in de buurt Vraag uw verkoopanalyse aan

Configureer deze woning op maat van uw leven...

Om u een beter zicht te geven op uw toekomstige woning voorzien wij enkele tools die u in staat stellen dit eigendom te simuleren op maat van uw leven.

Locatie

 

Mogelijks ook interessant voor u...

Uw eigendom hier?

Vraag hier uw gepersonaliseerd brandpolisvoorstel aan

Als één van de grootste onafhankelijke verzekeringskantoren is Hillewaere Verzekeringen uw ideale partner om uw eigendommen te beschermen. Een combinatie van gespecialiseerde maatschappijen, degelijke kennis en uitgebreide service garandeert een correcte financiële compensatie in geval van schade, verlies of diefstal van uw bezittingen.

Vraag uw offerte

Sluit eenvoudig een digitale hypotheek af!

Hillewaere Hypotheken wil als onafhankelijke kredietmakelaar een antwoord bieden het vaak ondoorzichtige doolhof van hypothecaire leningen.

Wij stellen uw persoonlijke situatie voorop en zoeken naar die formule(s) die het beste bij uw leven aansluit(en). Dankzij onze objectieve hypotheekhulp op maat weet u dus exact waarvoor u kiest en waarom.

Simuleer uw hypotheek-aanvraag Plan uw afspraak

Bereken gemakkelijk jouw renovatiekosten!

Eindeloos wachten op aannemers en dan verschillende offertes vergelijken voor de renovatiewerken? Dat is verleden tijd met Setle!

In deze handige tool krijg je meteen marktconforme tarieven voor alle verbouwingswerken die van toepassing zijn en kan je gemakkelijk de renovatiekosten berekenen voor het pand dat jouw hart sneller laat slaan. Zo heb je ook ineens een goede leidraad om de aangepaste tarieven van je aannemer aan af te toetsen.

Bereken de renovatiekost op dit pand

Bereken uw energiekost voor deze woning.

Dankzij de digitale technologie van June Energy maakt u een persoonlijke simulatie van de energiekost voor deze woning op maat van uw leven en woonsituatie.

- +

Geschat verbruik elektriciteit

kWH/jaar

Geschat verbruik gas

kWH/jaar

Geschatte energiekost

= € /jaar

Berekenen van uw energiekost

Bereken snel en eenvoudig uw investeringsrendement

Bekijk via onze online simulator wat deze eigendom zou opbrengen als investering!