Appartement te Ravels

Te Huur - Grote Baan 12, 2380 Ravels

Ref: 04/16459

€ 1 000

Vorige
Volgende
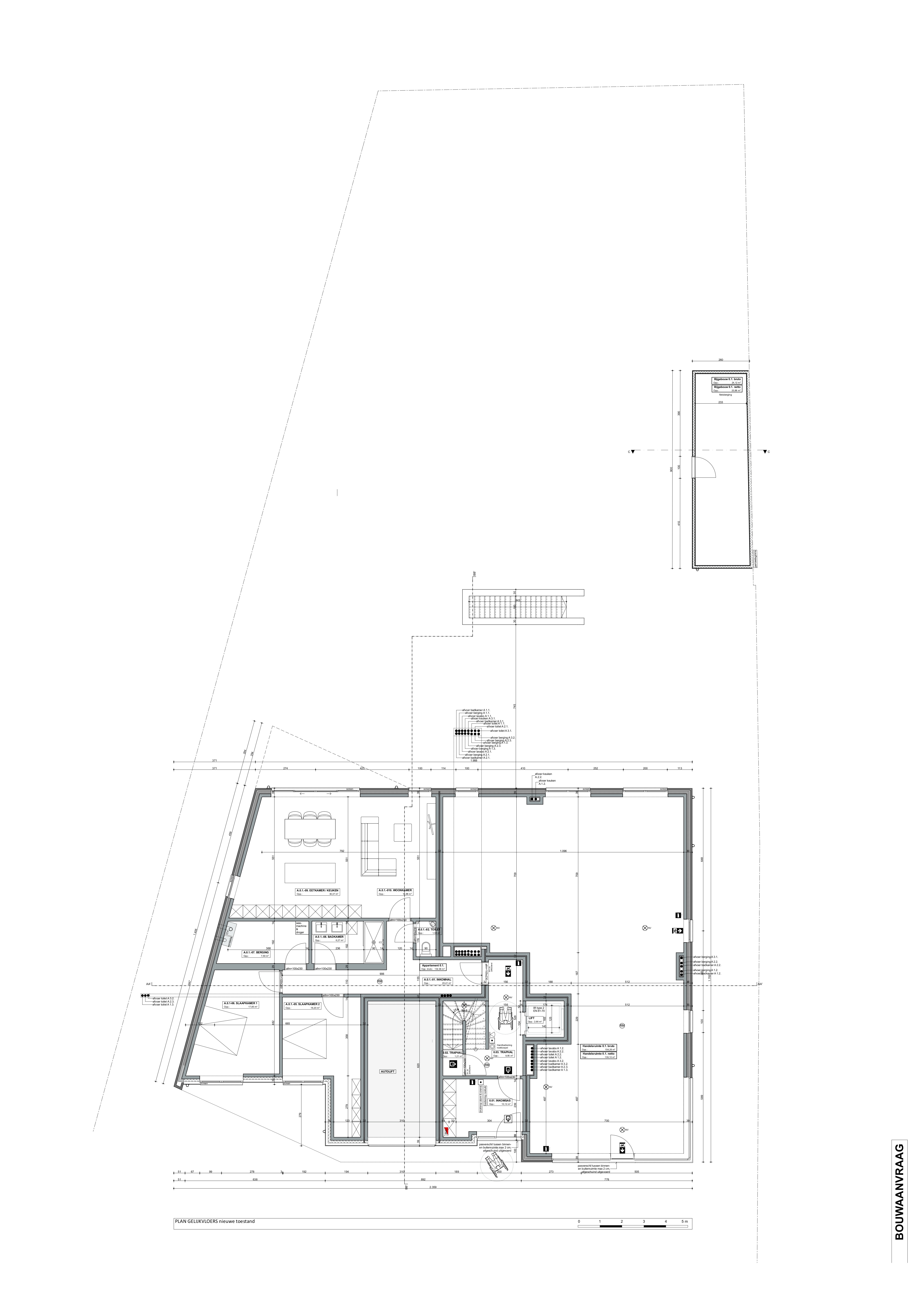
Gelijkvloers nieuwbouwappartement van 132 m² in hartje Ravels

Gelijkvloers nieuwbouwappartement van 132 m² in hartje Ravels

BENIEUWD? VRAAG EEN AFSPRAAK AAN VIA WWW. HILLEWAERE.BE EN KLIK OP DE RODE KNOP 'BEZOEK AANVRAGEN'.

In een modern nieuwbouwcomplex, centraal gelegen in de dorpskern van Ravels, bevindt zich dit gelijkvloers appartement van 132 m² met twee slaapkamers en een ondergrondse autostaanplaats.

Indeling:
Via de ruime inkomhal kom je binnen in het appartement. De lichtrijke woonkamer geniet van een uitstekende lichtinval en biedt toegang tot het zuidwestgericht terras. Hier kan je in alle rust genieten van het uitzicht op de gemeenschappelijke tuin.

De open keuken met kookeiland is volledig uitgerust met alle nodige toestellen. Verder beschikt het appartement over twee volwaardige slaapkamers, een badkamer met inloopdouche en dubbele wastafel, een apart toilet en een zeer ruime berging met aansluitingen voor wasmachine en droogkast.

De huurprijs omvat tevens een ondergrondse parkeerplaats (bereikbaar via autolift) en toegang tot een gemeenschappelijke fietsenberging.

Kortom: een appartement met hoogwaardige afwerking, duurzame materialen en een overvloed aan natuurlijk licht.

* Foto's zijn visualisaties

Bijzonderheden:
- Beschikbaar vanaf 1 juni 2026
- Servicekosten: 125 € (incl. 3 keer per jaar poetsen van de ramen)
- Energiezuinige technieken zoals vloerverwarming én -koeling, warmtepomp en zonnepanelen
- Gemeenschappelijke fietsenberging.
- Gemeenschappelijke parktuin

mijnhuurprofiel.be

Het vinden van het geschikte huurpand is vaak een proces van lange adem. Bij Hillewaere Vastgoed willen we deze zoektocht daarom zo aangenaam mogelijk maken. We werken hiervoor samen met mijnhuurprofiel.be, een online tool die huurders vlot en snel helpt in het vinden van hun nieuwe droomwoonst.

Voordeel van een huurprofiel

Technische details

Hoofdkenmerken

  • 2 slaapkamers
  • 1 badkamer
Beschikbaar vanaf
2026-06-01
Bouwjaar
2025
Bewoonbare oppervlakte
132 m²
Aantal toiletten
1

Garage en parking

Aantal parkeerplaatsen
1

Mede-eigendom & servicekosten

Gemeenschappelijke servicekosten (per maand)
€ 125

Plan een bezoek of vraag meer informatie over dit eigendom

Bij Hillewaere Vastgoed willen we de zoektocht naar een geschikte woning zo aangenaam mogelijk maken en u de beste service aanbieden. We werken hiervoor met mijnhuurprofiel.be, een online tool die huurders vlot en snel helpt in het vinden van hun nieuwe droomwoonst. Via de knop "bezoek aanvragen" kan u alvast uw huurprofiel aanmaken en plannen wij uw bezoekaanvraag in.

Locatie

 

Mogelijks ook interessant voor u...

Uw eigendom hier?

Vraag hier uw gepersonaliseerd brandpolisvoorstel aan

Als één van de grootste onafhankelijke verzekeringskantoren is Hillewaere Verzekeringen uw ideale partner om uw eigendommen te beschermen. Een combinatie van gespecialiseerde maatschappijen, degelijke kennis en uitgebreide service garandeert een correcte financiële compensatie in geval van schade, verlies of diefstal van uw bezittingen.

Vraag uw offerte

Sluit eenvoudig een digitale hypotheek af!

Hillewaere Hypotheken wil als onafhankelijke kredietmakelaar een antwoord bieden het vaak ondoorzichtige doolhof van hypothecaire leningen.

Wij stellen uw persoonlijke situatie voorop en zoeken naar die formule(s) die het beste bij uw leven aansluit(en). Dankzij onze objectieve hypotheekhulp op maat weet u dus exact waarvoor u kiest en waarom.

Simuleer uw hypotheek-aanvraag Plan uw afspraak

Bereken gemakkelijk jouw renovatiekosten!

Eindeloos wachten op aannemers en dan verschillende offertes vergelijken voor de renovatiewerken? Dat is verleden tijd met Setle!

In deze handige tool krijg je meteen marktconforme tarieven voor alle verbouwingswerken die van toepassing zijn en kan je gemakkelijk de renovatiekosten berekenen voor het pand dat jouw hart sneller laat slaan. Zo heb je ook ineens een goede leidraad om de aangepaste tarieven van je aannemer aan af te toetsen.

Bereken de renovatiekost op dit pand

Bereken uw energiekost voor deze woning.

Dankzij de digitale technologie van June Energy maakt u een persoonlijke simulatie van de energiekost voor deze woning op maat van uw leven en woonsituatie.

- +

Geschat verbruik elektriciteit

kWH/jaar

Geschat verbruik gas

kWH/jaar

Geschatte energiekost

= € /jaar

Berekenen van uw energiekost

Bereken snel en eenvoudig uw investeringsrendement

Bekijk via onze online simulator wat deze eigendom zou opbrengen als investering!