Pastorij te Oud-Turnhout

Te Koop - Magerman 5, 2360 Oud-Turnhout

Ref: 04/16651

€ 529 000

Vorige
Volgende
BEN nieuwbouwwoning op top locatie te Oud-Turnhout

BEN nieuwbouwwoning op top locatie te Oud-Turnhout

Deze BEN nieuwbouwwoning is gelegen op een absolute TOP locatie te Oud-Turnhout. Vlakbij het centrum en op wandelafstand van winkels, school en openbaar vervoer.

De indeling van de woning is de volgende:
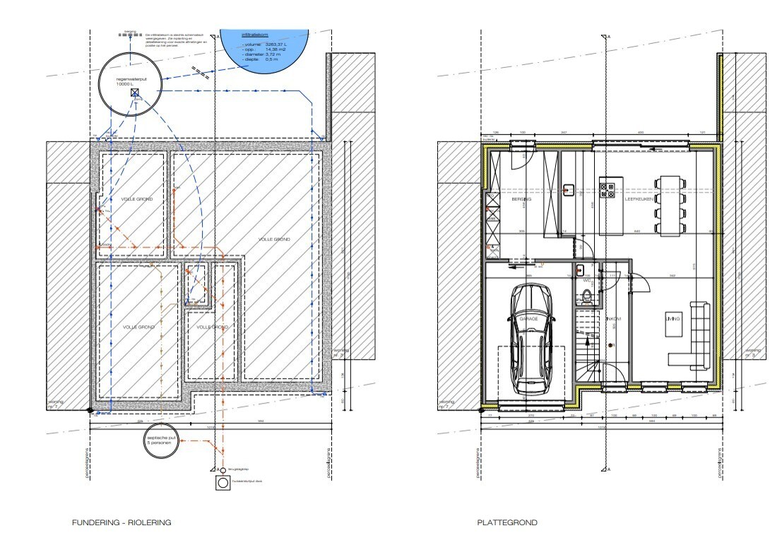
Het gelijkvloers bestaat uit een inkom met een apart gastentoilet, een grote woonruimte met een eet- en zithoek en een volledig ingerichte open keuken voorzien van alle luxe toestellen.
Verder treffen we een zeer ruime wasplaats en een inpandige garage.

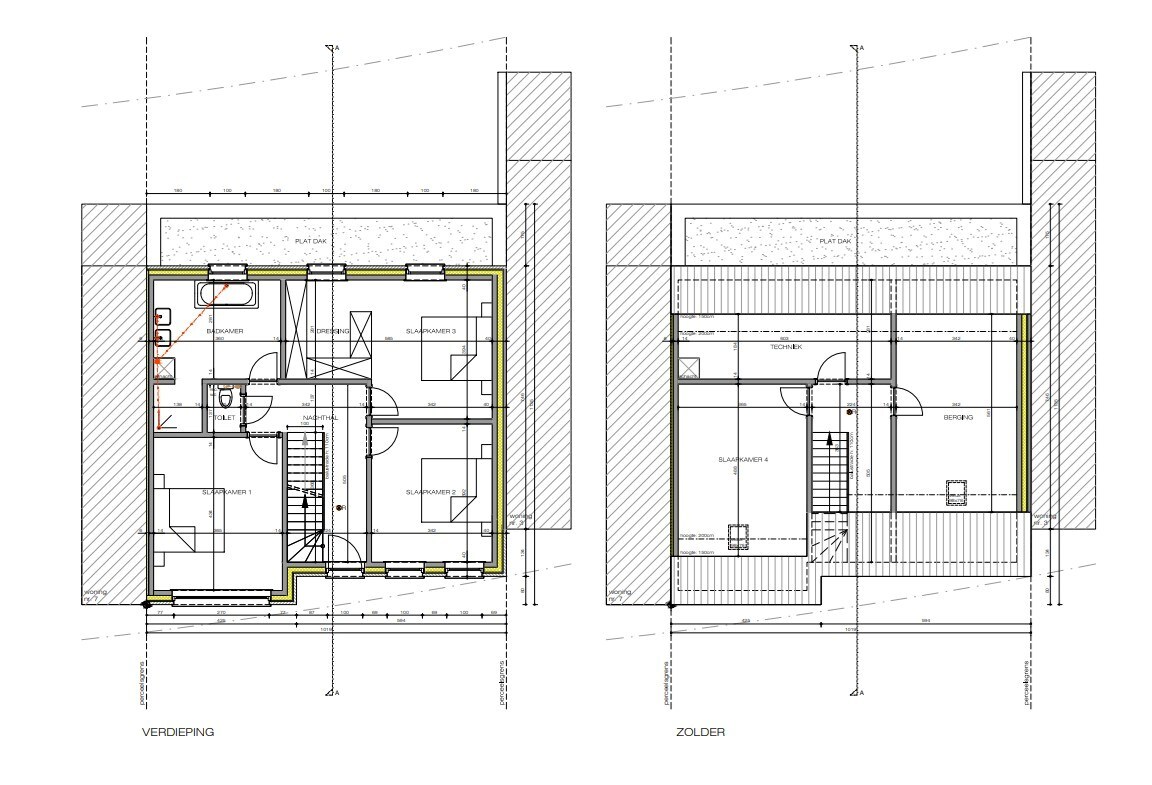
Op de eerste verdieping bevinden zich 3 ruime slaapkamers en een badkamer voorzien van een inloopdouche, ligbad en dubbele wastafel in meubel. Apart toilet op de overloop.

De tweede verdieping is een extra troef en vlot bereikbaar met een vaste trap en kan dienen als extra slaapkamers (2) of ontspanningsruimte. Verder treffen we hier ook nog de volledig afgesloten technische ruimte aan (warmtepomp, ventilatiesysteem).

De tuin wordt ingezaaid met gras, aangeplant met siergrassen en de oprit en het terras worden volledig aangelegd. Zeer ruime berging/ tuinhuis achteraan op het perceel.

Prijs is exclusief notariskosten, exclusief btw (21%) op constructieaandeel (350.000 EUR) en exclusief registratierechten (12%) op grondaandeel (179.000 EUR).

Troeven:
- Vloerverwarming
- Warmtepomp
- 10 zonnepanelen
- Kindvriendelijke locatie

Technische details

Hoofdkenmerken

  • 5 slaapkamers
  • 1 badkamer
Bouwjaar
2026
Perceelopp.
346 m²
Aantal toiletten
2
Tuin
Ja
Stedenbouwkundige vergunning
Ja
Stedenbouwkundige bestemming
Woongebied
Dagvaarding uitgebracht?
Neen
Verkavelingsvergunning
Ja
Voorkooprecht
Neen
P-Score
B
G-Score
B
Maatregelenregister
Neen

Garage en parking

Aantal garages
1
Aantal parkeerplaatsen
1

Plan een bezoek of vraag meer informatie over dit eigendom

  • Ik wens

Seth Boullart De expert
met buitengewoon veel kennis over uw buurt

Kantoor te Turnhout
Seth Boullart
Tel: +32 (0)14 45 10 11
GSM: +32 471 99 78 71
seth.boullart@hillewaere.be

Maak kennis met Seth Meer eigendommen in de buurt Vraag uw verkoopanalyse aan

Configureer deze woning op maat van uw leven...

Om u een beter zicht te geven op uw toekomstige woning voorzien wij enkele tools die u in staat stellen dit eigendom te simuleren op maat van uw leven.

Locatie

 

Mogelijks ook interessant voor u...

Uw eigendom hier?

Vraag hier uw gepersonaliseerd brandpolisvoorstel aan

Als één van de grootste onafhankelijke verzekeringskantoren is Hillewaere Verzekeringen uw ideale partner om uw eigendommen te beschermen. Een combinatie van gespecialiseerde maatschappijen, degelijke kennis en uitgebreide service garandeert een correcte financiële compensatie in geval van schade, verlies of diefstal van uw bezittingen.

Vraag uw offerte

Sluit eenvoudig een digitale hypotheek af!

Hillewaere Hypotheken wil als onafhankelijke kredietmakelaar een antwoord bieden het vaak ondoorzichtige doolhof van hypothecaire leningen.

Wij stellen uw persoonlijke situatie voorop en zoeken naar die formule(s) die het beste bij uw leven aansluit(en). Dankzij onze objectieve hypotheekhulp op maat weet u dus exact waarvoor u kiest en waarom.

Simuleer uw hypotheek-aanvraag Plan uw afspraak

Bereken gemakkelijk jouw renovatiekosten!

Eindeloos wachten op aannemers en dan verschillende offertes vergelijken voor de renovatiewerken? Dat is verleden tijd met Setle!

In deze handige tool krijg je meteen marktconforme tarieven voor alle verbouwingswerken die van toepassing zijn en kan je gemakkelijk de renovatiekosten berekenen voor het pand dat jouw hart sneller laat slaan. Zo heb je ook ineens een goede leidraad om de aangepaste tarieven van je aannemer aan af te toetsen.

Bereken de renovatiekost op dit pand

Bereken uw energiekost voor deze woning.

Dankzij de digitale technologie van June Energy maakt u een persoonlijke simulatie van de energiekost voor deze woning op maat van uw leven en woonsituatie.

- +

Geschat verbruik elektriciteit

kWH/jaar

Geschat verbruik gas

kWH/jaar

Geschatte energiekost

= € /jaar

Berekenen van uw energiekost

Bereken snel en eenvoudig uw investeringsrendement

Bekijk via onze online simulator wat deze eigendom zou opbrengen als investering!