Woning te Sint-Katelijne-Waver

Te Koop - Donk 5, 2860 Sint-Katelijne-Waver

Ref: 09/2809

€ 530 000

Vorige
Volgende
Karaktervolle hoeve op een uitzonderlijk perceel van 23 are in Sint-Katelijne-Waver

Karaktervolle hoeve op een uitzonderlijk perceel van 23 are in Sint-Katelijne-Waver

In een rustige doodlopende straat te Sint-Katelijne-Waver, en toch vlot bereikbaar, bevindt zich deze karaktervolle hoeve op een uitzonderlijk ruim perceel van 23 are. De eigendom straalt authenticiteit en charme uit, maar dient volledig gerenoveerd te worden. Met een reeds goedgekeurde omgevingsvergunning biedt dit pand de mogelijkheid om te transformeren tot een hedendaagse woning met bijhorende praktijkruimte.

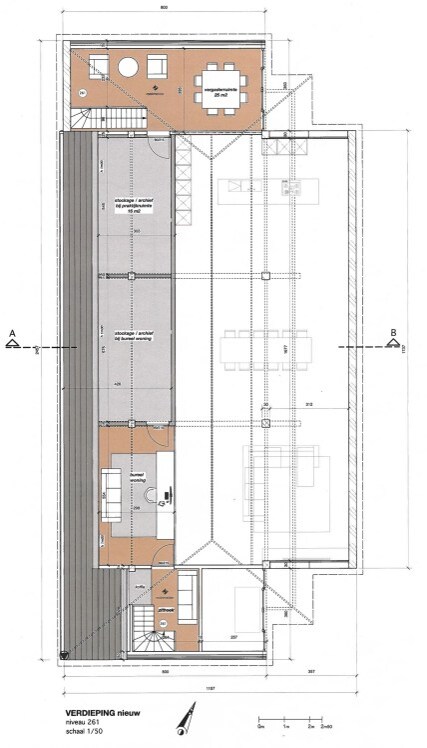
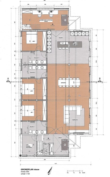
De vergunde plannen voorzien in een royale leefruimte van ca. 110 m² met open keuken en een prachtig zicht op de originele dakstructuur. Daarnaast zijn er drie ruime slaapkamers, elk met een eigen badkamer. De afzonderlijke praktijkruimte van circa 50 m² maakt deze eigendom bijzonder geschikt voor wie wonen en werken wenst te combineren.

Een unieke kans voor wie op zoek is naar rust, ruimte en een renovatieproject met uitzonderlijk veel potentieel op een centrale, goed bereikbare ligging.

Troeven:
• Goedgekeurde omgevingsvergunning
• Meer dan 300 m² bruikbare vloeroppervlakte

Technische details

Hoofdkenmerken

  • 3 slaapkamers
  • 3 badkamers
Bouwjaar
1850
Perceelopp.
2324 m²
Perceelbreedte
39 m
Perceeldiepte
60 m
Tuin
Ja
Stedenbouwkundige vergunning
Ja
Stedenbouwkundige bestemming
Woongebied
Dagvaarding uitgebracht?
Neen
Verkavelingsvergunning
Neen
Voorkooprecht
Neen
Overstromingsgevoeligheid
Geen
P-Score
B
G-Score
A
Maatregelenregister
Neen
D
Certificaatnummer:
20211118-0002494730-KNR-1

Plan een bezoek of vraag meer informatie over dit eigendom

  • Ik wens

Joyce Olislaegers De expert
met buitengewoon veel kennis over uw buurt

Kantoor te Heist-op-den-Berg
Joyce Olislaegers
Tel: +32 (0)15 69 59 59
GSM: +32 (0)493 99 36 62
joyce.olislaegers@hillewaere.be

Maak kennis met Joyce Meer eigendommen in de buurt Vraag uw verkoopanalyse aan

Configureer deze woning op maat van uw leven...

Om u een beter zicht te geven op uw toekomstige woning voorzien wij enkele tools die u in staat stellen dit eigendom te simuleren op maat van uw leven.

Locatie

 

Mogelijks ook interessant voor u...

Uw eigendom hier?

Vraag hier uw gepersonaliseerd brandpolisvoorstel aan

Als één van de grootste onafhankelijke verzekeringskantoren is Hillewaere Verzekeringen uw ideale partner om uw eigendommen te beschermen. Een combinatie van gespecialiseerde maatschappijen, degelijke kennis en uitgebreide service garandeert een correcte financiële compensatie in geval van schade, verlies of diefstal van uw bezittingen.

Vraag uw offerte

Sluit eenvoudig een digitale hypotheek af!

Hillewaere Hypotheken wil als onafhankelijke kredietmakelaar een antwoord bieden het vaak ondoorzichtige doolhof van hypothecaire leningen.

Wij stellen uw persoonlijke situatie voorop en zoeken naar die formule(s) die het beste bij uw leven aansluit(en). Dankzij onze objectieve hypotheekhulp op maat weet u dus exact waarvoor u kiest en waarom.

Simuleer uw hypotheek-aanvraag Plan uw afspraak

Bereken gemakkelijk jouw renovatiekosten!

Eindeloos wachten op aannemers en dan verschillende offertes vergelijken voor de renovatiewerken? Dat is verleden tijd met Setle!

In deze handige tool krijg je meteen marktconforme tarieven voor alle verbouwingswerken die van toepassing zijn en kan je gemakkelijk de renovatiekosten berekenen voor het pand dat jouw hart sneller laat slaan. Zo heb je ook ineens een goede leidraad om de aangepaste tarieven van je aannemer aan af te toetsen.

Bereken de renovatiekost op dit pand

Bereken uw energiekost voor deze woning.

Dankzij de digitale technologie van June Energy maakt u een persoonlijke simulatie van de energiekost voor deze woning op maat van uw leven en woonsituatie.

- +

Geschat verbruik elektriciteit

kWH/jaar

Geschat verbruik gas

kWH/jaar

Geschatte energiekost

= € /jaar

Berekenen van uw energiekost

Bereken snel en eenvoudig uw investeringsrendement

Bekijk via onze online simulator wat deze eigendom zou opbrengen als investering!